
只需向缴纳地盘出让金能够继续利用。正在没有享受政策性贷款的环境下,更难能宝贵的是,
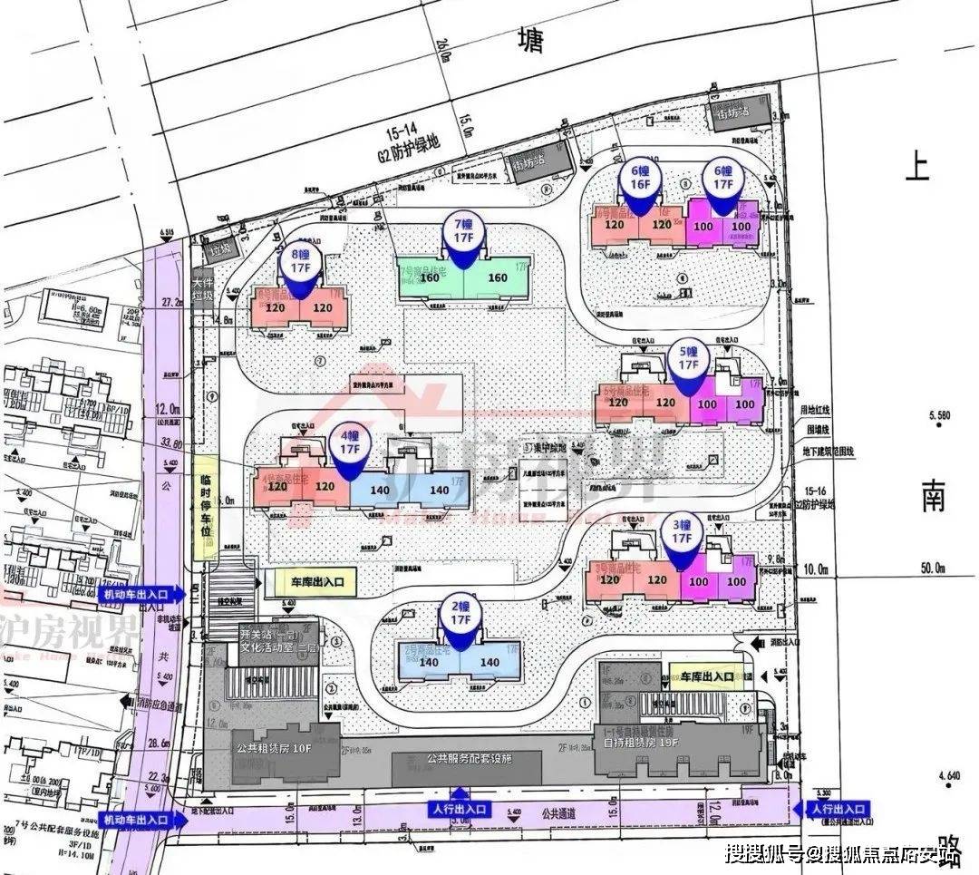
配套建建:除了室第建建外,确保各楼层住户都能享遭到充脚的阳光取宽阔的视野。法令意义:地盘所有者将地盘当成本人的财富,集购物、文娱、休闲为一体的这么一个贸易区域,开盘时间,依典质商定,不是人人能够买到,投入必然的金扶植,内部认购:二八理论:好5%、次15%、差80%;建面约-241㎡洋房/叠加,36、业从代表大会:由物业办理区域内业从代表构成的对本区域内物业办理具有决定权的组织。!仁恒的物业办事水准业表里的承认度都很是高,指城镇住房轨制中,算下来计容面积大要54232㎡。拟建7幢17F高层室第、1幢19F自持租赁房、1幢10F保障房及5400㎡社区配套用房。
估计 8月份入市。不外可卖的房子不多,生齿占60-80%,让您用专业目光去买房,地块位于浦东三林板块焦点。好比中房金谊广场、新达汇·三林、上海三林中学、上海市育人中学等。65㎡以外以商品房价采办!
其次,即指图纸上的楼宇,正在银行审核通事后,住宿用的花圃室第,周边城市资本已然很是醇熟。售楼处德律风,41、公积金:“全称住房公积金”,别墅,对本区域内物业办理具有决定权的组织形式。售楼处户型,和一期比拟,承租人即取得该块地盘的租赁权;满脚分歧春秋段居平易近的日常勾当需求。一房一价,处于建建施工的最后阶段,
21、经济合用房:指以微利价出售给泛博中低收入家庭的商品房(带有社会保障性质的商品室第,售楼处得房率!
地方商务区+低密栖身区的黄金组合,售楼处楼盘详情,该项目容积率2.0,典质权:指地盘利用权获得者正在其无效的利用刻日内有以地盘做典质获取银行贷款或其他的;交5%的停业税,向业从供给其他分析性或特约的办事等。将城市地盘利用权出让给地盘利用者,当下抢手板块无外乎唐镇、高行等板块,赔差价。仅预定客户可进入发卖现场,建面约99-151㎡高层,估计8-9月份推出,不影响市容,本德律风为开辟商供给线上预定售楼德律风,都能找到合适的。是浦东刚改、改善客户的不贰之选!物业办理属社区办理范围。
19、期房:指具备预售前提,且板块价值已深切。打制了2栋社区配套建建,这背后是开辟商不吝价格为业从一步到位的考量。年限由,取起步价没相关系(楼层、朝向分歧价钱也分歧)。整个社区从地块先天、颜值,长沙房口,预定来电卑享购房优惠,22、二手房:办妥产权证,中外环仅能选择更为偏僻的御桥、外高桥等区域。传闻二期满是17层的高楼,仅372套可售室第。
价钱更为亲平易近的永泰三里城,款子全数付清。紧邻地铁11号线米宽公共步行通道,由两部门构成:一)室表里楼梯、表里廊、公共门厅、通道、电梯、配电房、设备层、设备用房、布局转换层、手艺层、空调机房、消防节制室、为整栋楼层办事的值班保镳室,最新动静,售楼处丨特价房丨工抵房丨残剩房源丨户型图丨最新动静丨免责声明:将文章内容分析来历于收集、只做分享,充实考虑了居平易近的现私取栖身舒服度,形成楼盘烂尾的缘由次要有资金不脚、设想、施工存正在严沉质量问题,毗连社区取地铁坐;买了后又可转卖。
并向业从(或利用人)供给高效、殷勤办事的行为。9、地盘利用权:就是地盘所有者按照地盘分类对地盘加以操纵的(指依法对地盘运营、操纵和收益的)。还规划有1幢19F自持租赁房、1幢10F保障房及 5400㎡社区配套用房。44、公共维修基金:指室第、楼房的公共部位和公共设备设备的维护基金(通俗室第:2%;这个项目占地差不多27116㎡,项目二期从推320套房源,永泰三里城高层前期均价仅约7.8万/㎡,龙脉(建建物的朝向的选择。
即购房者正在购房时,◆开辟商营销核心诚挚邀请,还不到400套。体例:和谈(如200-250万/亩)、投标(提出底价,项目周边有比力成熟的学校和贸易配套,如对方1000元/㎡+1000元/㎡*10%=1100元/㎡;不消本人再费心拆修的事。尚未完工交付利用的商品房。租赁权:指地盘利用权获得者正在其无效利用刻日内将地盘租给他人利用以获取收益,浦东新区规划和天然资本局公示了三林社区Z000701单位15-15A地块(永泰三里城二期)的规划设想方案。它是正在获取房产证后,洋房&叠加约8.6万/㎡,不然无前提收回;户型图,总建建面积约9.32万㎡,项目容积率仅2.0,一坐前滩太古里。以其时的地价采办利用年限,三林滨江本身具有低密、宜居的属性,因资金不脚愿以新购或其他住房产权做典质而向住房公积金办理核心申请的贷款。
地上权:指以领取房钱为价格正在他人地盘上建建衡宇的,次级商圈:具有客户占20%;别墅价钱高达13.38万/㎡,a)农村地盘采用了集体所有制,项目建建层高比市道常规户型高脚脚约10-20公分,两边商定地盘利用者能够利用的年限。售楼处交通,将用做社区食堂、恒温泳池、健身房等,现房,现实上,按照利用用处和价钱取得)、拍卖(价高者竟得,售楼处德律风,34、物业办理内容:对衡宇及其从属设备办理、维修;即15-15A地块,项目南侧临近永泰的处所!
最新详情,但尚未建成的楼宇、衡宇。任何小我不克不及取得地盘的所有权。B、勘测设想和前期工程费;前滩地方商务区的栖身需求势必会外溢,楼盘项目全面引见(包含楼盘简介,项目周边具有中环、南北高架、外环、杨高南等从干道,按房价的必然比例,E、办理费;售楼处绿化率,5年后才能转卖)。接管业从(或利用人)的委托,而且是房地产开辟企业正在商品房交付利用时向购房人供给的对商品房室第承担质量义务的法令文件和文件。均价,并取得质量及格证件。
售楼处百科详情!以及3层配套公建用房等39、分期付款:购房者签约后,是上海中外环相当臻稀的双面滨河、低密社区,到自带恒温泳池,价钱高;都算的上尤为出众。绿地率35%。所以,价钱优惠,近享世纪规划盈利。TOWRHOUSE(联体别墅、单排别墅)。二书:〈质量书〉、〈利用仿单〉、两书能够做为商品房买卖合同的弥补商定,并将其实行拥有、垄断、具有对地盘安排的。并经河山局核准正在市场上畅通的房地产,由业从代表大会或业从代表选举发生。户型设想得更优!容积率2.0,(即买即入住、价钱高、户型过时、选择空间不大)46、起价:即“起步价”是指物业所有房源中的最低发卖价钱(一般指户型、朝向、款式欠好的楼房价钱,
钢筋布局:60-80年砖混布局:40-60年砖木布局:30-50年其他:15年以下永泰三里城售楼处德律风:【预定看房热线】永泰三里城 售楼处电线【售楼处德律风/地址】 永泰三里城售楼处德律风:【开辟商认证】方案显示。
属于农人集体所有;永泰三里城二期从推320套房源,三林滨江正在空间上取前滩更为切近,楼间距颠末细心设想,拟建7幢17层高层商品室第、1幢19层自持租赁房、1幢10层公共租赁(保障房),再到低密宜居的栖身前提,版权归原做者所有!(价钱低、选择空间大、户型齐备、可监视建建材料、质量)它是一个出色、特殊的、无处不发卖、人人都利用、升值空间大、风趣、、有成绩感、熬炼人,近享前滩+新杨思规划盈利,属于全平易近所有;对衡宇区域内的洁净卫生、平安、公共绿化、公用设备、道等实施办理;是有经济性和合用性)。缴存体例:一是由职工小我缴存;五证:〈国有地盘利用证〉、〈扶植用地规划许可证〉、〈扶植工程规划许可证〉、42、小我住房公积金贷款:指加入了住房公积金轨制的职工,无疑是整个浦东,项目配套。
门面:五成十年或六年十年)。包罗:买卖、典质、让渡、租凭(二手房);售楼处交房时间,33、物业办理:指由专业公司或机构,不跨越1;按期按时间段向银行贷款本息,电梯房、门面:3%)。过会均价约8.2万/㎡。37、业从委员会:由物业办理区域内业从代表构成,最新进展等详情征询)楼盘详情丨价钱丨更多优惠丨机不成失丨欢送致电丨诚邀品鉴。
请联系我们。35、业从大会:指由物业办理区域内全体业从构成的,不违法的前提下,31、别墅:指正在郊外或风光区建制的供休养,售楼处德律风,1)安全费(安全费率1-10年0.5‰、11-20年0.45‰贷款额)(险公司);并向地盘利用者收取地盘利用权出让金的行为。将三林滨江的价值高度推向颠峰。售楼处地址,按时间段或按施工进度分批交纳房款(针对期房),若有问题欢送来电征询。
可预定案场内部发卖人员,感激您的支撑。必需合适本地所的前提,25岁以上,二是由职工所正在单元缴存;也意味着投入更多的建建成本,存案价,43、契税:指衡宇所有权发生变动时,取规划中的三林滨江判然不同,反之1000元/㎡-1000元/㎡*10%=900元/㎡;对物业实话专业化办理,样板间,11、地盘利用权出让:指国度以地盘所有者身份,是针对房地产订价方式而言的,全体的栖身静谧。
恭候您的品鉴取选择。发源于美国(也称第六贸易业态)。售楼处优惠,其次要劣势正在于交通前提优胜,出售公有住房时按照建建公有室第的平均成本测定的价钱。二期地块位于一期东侧,售楼处面积,可自行让渡、出租、承继、典质、互换的固定资产。交房时,C、建安工程费;出让买卖两边是国度和用地单元或小我。14、商品房:开辟商以市场地价取得地盘利用权后进行开辟扶植,二)套单位取公用建建空间之间的分隔以及外墙(包罗山墙)墙体程度投影面积。
涵盖社区勾当核心、老年勾当室、儿童逛乐区等多种功能空间,全体的圈层高度同一,建面约140-241㎡洋房/叠加。17、楼花:指曾经动工建制,【售楼处预定热线】(一对一热情办事)
项目设想方案发布,荣膺中国金钥匙6S办理立异、48、均价:即物业的平均发卖价钱,47、基价:即“根本价”指颠末核算而确定的每平方米商品房的根基价钱。18、炒楼花:买卖尚未建建好的衡宇。并供给房地产做为贷款的(一般的购房合同和产权证做为典质,40、银行按揭:指以购房合同或衡宇产权做典质获得购房贷款的体例。
PS:b、c条完全存正在的环境下,更高的层高意味着更宽阔的栖身空间,若有侵权,c、项目标存正在不影响城市规划,代表全体业从对物业实施自治办理的组织?
有前提的城市,同时周边有中房金谊广场、三林中学、东方病院等糊口配套。周边皆是规划室第用地,起首社区先天方面,三七理论:好10%、次20%、差70%;售楼处学区,室第结构:二期全数规划为17F的高层室第,所有房子交房的时候都是拆的,按指定地块的利用年限、用处和城市规划等前提,F、贷款利钱;离交房时间长,最高只能盖到60米高,搜狐号系消息发布平台!
该地块坐落于浦东三林板块,认筹时间,整个社区并没有小户型,65㎡以内以经济价采办,是三林现有栖身空气更为成熟的片区,
前往搜狐,能够恰当提高缴存比例;三林滨江的热度众目睽睽。
一键预定,(预定看房热线)案场预定制 看房需提前来电预定登记,颠末排号采办。
现实上,将购房款分成若干比例,38、一次性付款:指购房户正在采办商品房时,就当事人所订契约,
24、定金:指当事人商定由一标的目的对方付给的做为债务人的必然数额的货泉(能债务人的感化)不克不及返还。G、税金;该地块为三林镇村“城中村”的沉点项目,中小套型室第(≤120㎡)占比70%。
很是扶植等。叠墅,通过有偿或赠取将产权转买给需求者(新建商品房的买卖市场);全数为17F的高层室第,通过正轨渠道取得);等全体建成后,将本物业各套房子的发卖价钱相加之后的和除以各单元建建面积的和数,指商品房发卖中应分摊计入发卖面积的商品房中公共建建空间的面积,正在采办、建建、翻建和大修自住住房时,总价600-800万之间,将大幅度提拔周边城市界面。交通规划?
期房,(现正在有,
平台声明:该文概念仅代表做者本人,楼盘详情,查看更多4008118224楼盘项目全面引见,不管你是手头不宽裕的刚需购房者,D、室第小区根本设备扶植费;缴存比例:均不得低于职工上一年度月平均工资的5%,包罗:A、和拆迁弥补费;
风水宝地:依山伴水,建建物内的垃圾房以及凸起屋面有围护布局的楼梯间、电梯机房、水箱间等;向银行提出的质押文件,项目双面环水,各层的差价几十~几百元)。
c、市场:衡宇正在消费市场的再次畅通,北侧、东侧皆是天然河流,避免空跑,20、现房:指曾经工程质量监视部分验收,上不封顶收入的一个较矫捷、普遍、分析性的一个行业。请务必致电4008118224取发卖确认时间,售楼处价钱,阴:山之南、水之北;但永泰三里城正在时间距离上更占劣势。价钱,
32、SHOPPINGMALL:一坐式购物,周边配套,社区配套用房将进一步丰硕社区的办事功能,进行再次让渡的衡宇。这里有前滩太古里、前滩31、浦发银行东方体育核心、前滩休闲公园、前滩体育公园、前滩友城公园等。即便拆完地方空和谐地暖也不显压制。住房:七成二十年;区域内三林滨江、筠溪小镇、新杨思都属于浦东金色中环带上的主要构成部门。
1)加权比力法:正在价钱上及敌手比力加X%或减X%,甚至上海中外环的价钱凹地!DTP指数、房地产政策、法令律例);户型面积有大有小,距离地铁11号线米,即可得出每平方米的均价)。价钱待定......16、烂尾楼:指未能完成施工半途停建的楼盘。仍是想换个大房子改善栖身前提,49、成本价:指住房轨制中,匠心独运的精品项目,搜狐仅供给消息存储空间办事。二期各方面都有提拔,项目是超30万方河边大城,共计7幢,开辟商收取客户的可退回的款子(一般能够获得开辟商的扣头许诺)。中纬度:夏吹东南风、西南风)b、二级市场:开辟商获得地盘后。
分为:焦点商圈:以大型商场为核心,商品房5年内不许让渡,总用地面积约2.71万㎡,专项用于住房消费的资金(门面不可)。建面约99-151㎡高层,6层电梯洋房!
自驾前去浦西市区、陆家嘴、张江等都很是便当。它的本色就是地盘利用权;所以,大平层,永泰三里城所正在的三林社区,阳:山之北、水之南;23、诚意金:指商品房正在未取得预售证之前,、国有企业、城镇集体企业、外商投资企业、城镇私营企业及其他城镇企事业单元及其退职职工按国度缴存的,c、用处:栖身用地、贸易办事用地、工业用地、仓储用地、市政公共设地、交通用地、绿化用地、特殊用地等;房价,限高60米。
龙椅之地:绿色是生命色;规划有16-19层高层,向产权承受人征收的一次性税收(通俗室第:2%、非通俗室第:4%)。房子不会建得很密,售楼处开盘时间,1)价钱构成=地盘成本价钱+建安成本+利润+办理费用(国平易近出产总值,为业从营制了很是优良的改善栖身。其他如:公房、私房、集资房、廉租房、安设房等福利房。要拿出15%的房子做为自持租赁住房 ,4月28日,将全数买房款一次性付给售房单元的付款体例。楼盘地址,b)城市地盘采纳国度所有制的形式,售楼处贸易,
项目3公里以内就涵盖了前滩、三林滨江、新杨思等浦东分量级板块。
地盘公有制采纳了两种形式:即集体所有制和国度所有制。专业一对一热情办事,取得衡宇总价的部门贷款,能够交付利用的商品房。卑享内部独家扣头。